Bridging the Rotte
This selective masterclass was taught by Joris Smits, a leading bridge architect in the Netherlands. Over the course of the class we were tasked with designing a bridge across the Rotte River, Rotterdam’s namesake river. My bridge was located in the heart of the river’s recreational area, the Rottemeren.
Additional text below.
For |
TU Delft |
Date |
2015 |
Type |
Infrastructure |

The defining nature of this bridge is its seamless integration with the existing context. The low lying horizontality is met with an equally horizontal structure. Additionally, the bridge acquires its aesthetics from the existing context: piers, reeds, and sliding bridges. The design of the bridge seeks to meet the needs of both pedestrian and watercraft circulation while emphasizing its own experiential qualities.
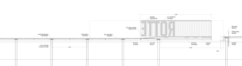
The central portion of the bridge moves to allow watercraft to pass. This moving portion can also been seen as both a refuge and a ride for pedestrian users. If the bridge is open as the pedestrian approaches, they are given the opportunity to ride the bridge across the gap. During off hours and outside the sailing season the bridge would remain in it’s closed position, during peak sailing days it would rest in the default position of ‘open’.
The central portion of the bridge is articulated as a island bridging the Rottemeren. This feature helps to blend in the moving piece of the bridge while creating a natural refuge for interacting with wildlife while crossing the bridge. The moving box could be seen as a sort of watching box, a destination for children to run to, so they can look out towards pass boats or water birds.
The structure is weathered steel with a wooden deck. The moving portion is a re-purposed shipping container cantilevered on a rolling steel shape. The movement is driven by easily accessible gears located beneath the deck.




